
Lunedì-Venerdì
9.00-13.00 e 15.00-19.00
Sabato su appuntamento
C.F. e P. IVA 00971900329
R.I. 009719003329
REA 114765
CCIAA Trieste
sangiovanni@arubapec.it
pubblicato il 16 Settembre 2025
Zona Periferia est
| Prezzo | 980.000 € |
|---|
| Metratura | 363 m² |
|---|---|
| Giardino | 500 m² |
| Stanze | 5 |
| Soggiorno | 2 |
| Bagni | 5 |
| Ascensore | assente |
| Riscaldamento | autonomo con caldaia a metano |
| Acqua calda | autonoma con caldaia a metano |
| Stato dell'immobile | ristrutturato |
VIA RISANO - RAUTE In panoramica e soleggiata posizione collinare, proponiamo vendita villa bifamiliare di ampia metratura con giardino, quattro posti auto, piscina e vista mare.
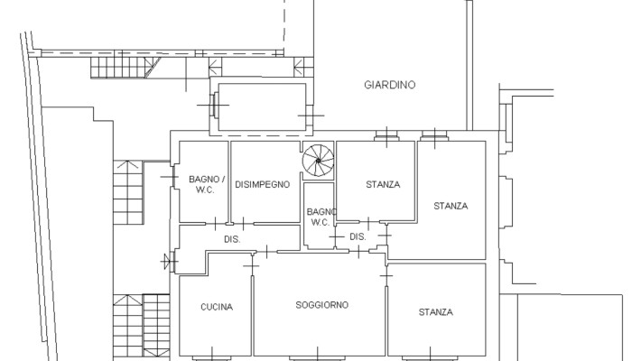
La proprietà si sviluppa su una superficie di 885 mq, e comprende la villa, suddivisa in due appartamenti, cortile e giardino (250+250 mq) di pertinenza del piano terra, un'area esterna coperta di 56 mq ad uso laboratorio ed un'area di parcheggio di ulteriori 56 mq.
L'appartamento al primo piano misura 133 mq. E' un trilocale con cucina abitabile, soggiorno, uscita al terrazzo di 26 mq, due camere da letto, ulteriore stanzino, due bagni completi e finestrati, soffitta di proprietà.
Le condizioni interne sono molto buone, alcune finiture sono state mantenute nel tempo, come pavimenti e rivestimenti, mentre le porte interne sono state sostituite. Infissi Douglas con doppio vetro termopan. Nel terrazzo sono state installate due tende da sole motorizzate.
Si accede all'appartamento attraverso un piccolo portico, altezza area di parcheggio, livello strada. Da qui si può godere di una bellissima vista panoramica che spazia dal verde circostante fino al mare.
L'appartamento al piano sottostante si sviluppa in 230 mq distribuiti su due piani. L'alloggio è un trilocale che potrebbe diventare quadrilocale, composto da salone con sala da pranzo, cucina abitabile, due bagni completi, due camere da letto. Al piano seminterrato, troviamo una grande taverna con cucina, tre stanze e un ulteriore bagno.
L'abitazione si presenta in ottime condizioni, risultato di un'ottima ristrutturazione realizzata negli ultimi anni. Infissi in rovere con doppio vetro termopan e tapparelle motorizzate.
Questo appartamento ha di pertinenza il cortile completamente lastricato in pietra repen, qui si trova la piscina, e il giardino a pastini.
I due appartamenti hanno impianti autonomi per quanto riguarda luce, gas e riscaldamento. L'acqua fredda è in comune. Presenti le certificazioni inerenti gli impianti.
Gli appartamenti vengono venduti parzialmente arredati con armadiature e mobili su misura.
L'edificio è stato oggetto di riqualificazione energetica. Nel 2023 sono state rifatte le facciate con la posa di cappotto termoventilato da 12 cm. Sul tetto sono presenti pannelli solari per la produzione di acqua calda a servizio del piano terra.
Viene valutata anche la vendita frazionata.
APE Classe A1 - EP gl,nren 49.19 kWh/mq anno.
Per info: Imobilia - tel 040.81.02.77 - cell 348.740.6896 - email info@imobilia.re
Vuoi fare una visita virtuale? Chiamaci per fare una dettagliata visita tramite il tuo computer o il tuo smartphone, restando comodamente a casa tua.
Sei interessato a vendere o affittare il tuo immobile? Ti offriamo una VALUTAZIONE GRATUITA e senza impegno.

Lunedì-Venerdì
9.00-13.00 e 15.00-19.00
Sabato su appuntamento
C.F. e P. IVA 00971900329
R.I. 009719003329
REA 114765
CCIAA Trieste
sangiovanni@arubapec.it